Herb Gminy Limanowa Oficjalny serwis
Gminy Limanowa

Odpowiedź na interpelacje radnego Daniela Łąckiego

28.03.2024
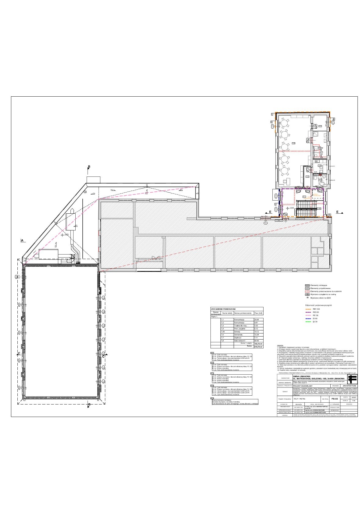
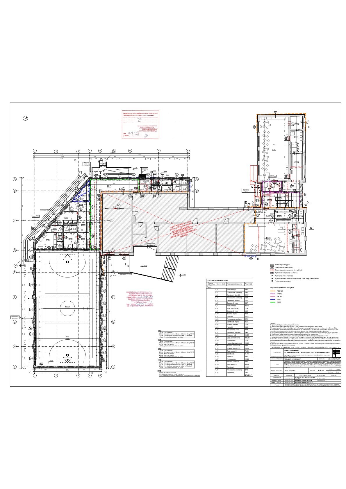
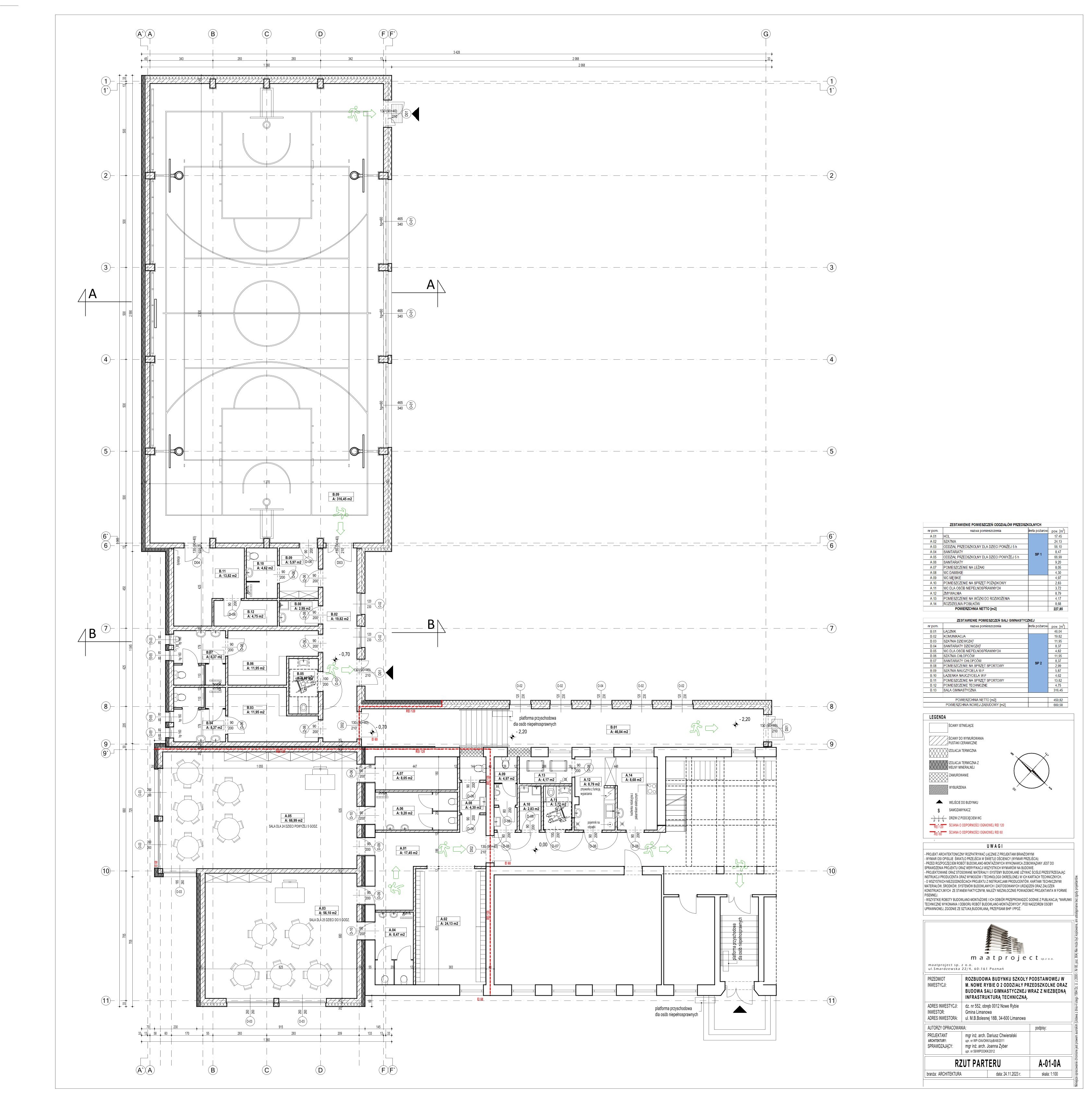
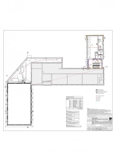
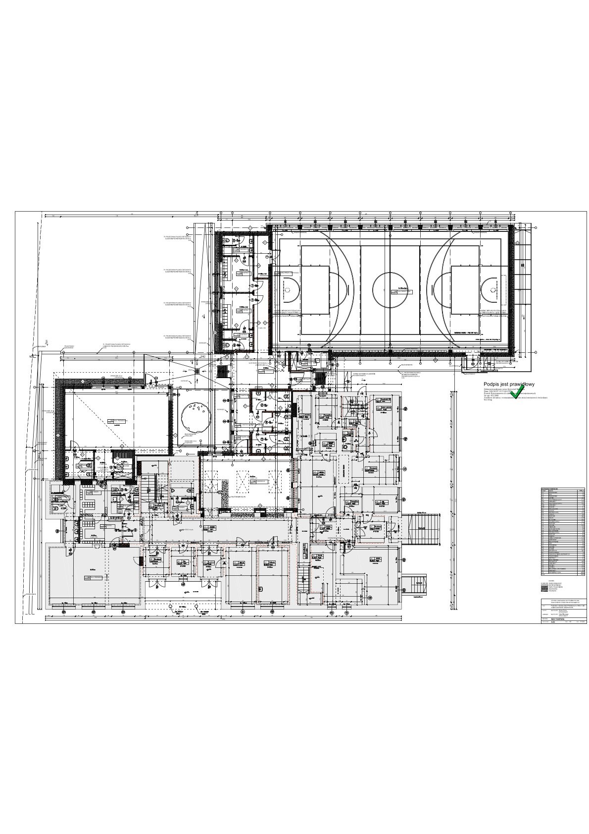
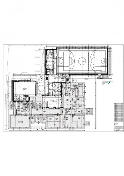
Zgodnie z interpelacją na ostatniej sesji Rady Gminy Limanowa, radnego Daniela Łąckiego, zainteresowanego rozbudową szkół  w Kłodnem, Młynnem oraz Nowym Rybiu zamieszczamy wizualizacje oraz zrzuty planowanej rozbudowy placówek oświatowych. To już ostatnie na terenie gminy Limanowa szkoły, w których baza sportowa wymaga doinwestowania, a które posiadają już gotowe projekty. Ponadto w planach jest również budowa sali gimnastycznej w Szkole Podstawowej nr 2 w Męcinie póki co w fazie planowania. Dzięki naszym staraniom i pozyskanym środkom i w tym placówach dzieci będą mogły komfortowo rozwijać sowje pasje. 

Szkoła Podstawowa w Młynnem: 




     Szkoła Podstawowa w Klodnem :

 


Szkoła Podstawowa w Nowym Rybiu :



Liczba wyświetleń: 1332
Aktualności
Inne
Kultura
Oświata
Sport i turystyka
Biznes
Widżet Dostępności
Rozmiar Tekstu
1 Rozmiar Tekstu
Ustawienia tekstu
1 Odstęp między wierszami
1 Odstęp między paragrafami
1 Odstęp między literami
1 Odstęp między słowami
Czytelność tekstu
Wyrównanie tekstu
Filtry
Pomocne